卸町新築戸建
「卸町新築戸建」のここがイチオシ。自分のライフスタイルを重視する方にオススメのデザイナーズです。生活の中では、欠かせない車を2台も駐車可能で便利です。引っ越したらすぐに使えるフル暖エアコン付きです。
ローンシミュレーションこの物件を購入した場合の、月々の支払い価格の一例です。借り入れを保証するものではございません。
- 返済期間
-
- 金利
-
- ボーナス時の増額(1回分)
-
- 借入金額:
-
- 頭金:
-

- 毎月の返済額:
(※元利均等方式 金利5.00%まで ※返済年数5~50年まで入力できます)
(※ボーナスは年2回で計算しています。1000万円まで入力できます)
(※物件購入時、その他諸費用が発生する場合がございます)
物件概要
【新築一戸建】 物件番号:94789436 情報更新日:2026年02月09日 次回更新予定日:2026年02月23日| 所在地 | 青森県青森市卸町3-14 | ||
|---|---|---|---|
| 交通 | |||
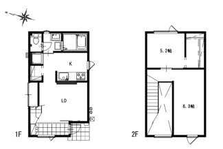
| 間取り/詳細 |
1LDK/ 洋室 5.2帖 1室/その他 6.3帖 1室/LDK 9.0帖 1室 |
建物面積(坪数) | 53.62㎡(16.22坪) |
| 価格 | 1,795万円 | ||
| 駐車場/月額料金 | 有/- | ||
| 土地の敷金/保証金 | -/- | 借地料/借地期間 | -/- |
| 土地権利 | 所有権 | 土地面積(坪数) | 81.08㎡(24.52坪) |
| 傾斜地部分面積 | - | 路地状敷地 | - |
| 私道負担面積/セットバック | -/無 | 高圧線下面積 | - |
| 地目/地勢 | 宅地/- | 接道状況 | 一方(南西 公道 9.0m 間口 5.7m) |
| 建ぺい率/容積率 | 60%/200% | 用途地域 | 準工業 |
| 都市計画 | - | 種別/構造 | 新築一戸建/木造 |
| 階建 | 2階建 | 築年月(築年数) | 2025年 6月 (予定) |
| 総区画数/販売区画数 | 2区画/2区画 | 向き | - |
| 現況 | 未完成 | その他の法令上の制限 | 景観法 |
| 取引態様/引渡時期 | 一般媒介/相談 | 建築確認番号 | 第0410号 |
| 物件番号 | 94789436 | 取引条件の有効期限 | 2026年02月23日 |
| 設備条件 |
|
||
| 備考 |
・省令準耐火構造『2×4工法』 ・引渡時品質2年保証 ・住宅瑕疵担保責任保険10年保証 ・一部住宅設備10年保証(システムキッチン・システムバス・洗面化粧台・温水暖房便座・給湯器・24時間換気システム) ・地盤調査済&引渡日から10年間保証 ・べた基礎工法採用(底部分も基礎に) ・基礎断熱工法採用 ・住宅ローン控除対象住宅 |
||
| 取扱会社 |
|
||
※地図上に表示される物件の位置は付近住所に所在することを表すものであり、実際の物件所在地とは異なる場合がございます。





























